Spring naar hoofd-inhoud

vrijeschool Vredehof

Rotterdam, NL

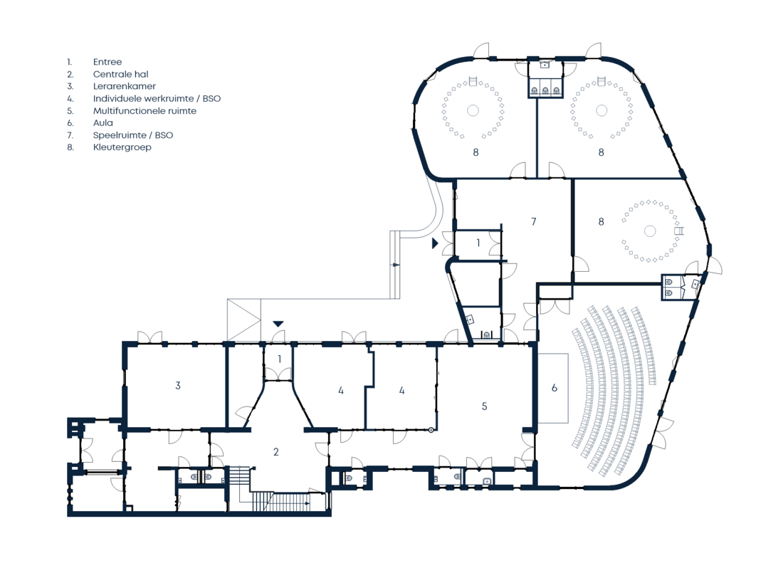
Vrijeschool Vredehof is gehuisvest in een karakteristiek schoolgebouw uit 1911 in Rotterdam Kralingen. Het bestaande schoolpand bestaat uit twee bouwdelen; een deel hoogbouw en een aangrenzende uitbouw. De hoogbouw maakt deel uit van het beschermd stadsgezicht Rotterdam en wordt compleet gerenoveerd om te voldoen aan de energetische normen van deze tijd. De bestaande laagbouw is destijds gebouwd met een semi-permanent karakter en heeft een beperkende indeling en bouwhoogte. Daarom is besloten deze laagbouw te slopen en te herbouwen, zodat het een vrijere indeling en passende vormgeving krijgt.

Zoektocht naar polariteiten

De basis van het ontwerp is de zoektocht naar polariteiten tussen de bestaande hoogbouw en nieuwe laagbouw. In het ontwerp is dit gevonden door een laag houten organisch volume toe te voegen aan een hoog steenachtig en statig gebouw. Deze polariteiten versterken elkaar, een kwaliteit die ook uitgangspunt is in het vrijeschoolonderwijs: het hele leven bestaat uit een evenwicht tussen polariteiten. Het omhullende karakter van de uitbreiding biedt huisvesting aan de kleutergroepen en de grote zaal.

Bestaande structuur handhaven

Uit respect voor de bestaande hoogbouw wordt zoveel mogelijk binnen de bestaande structuur gerenoveerd op een zorgvuldige wijze. De gevels worden daarbij geïsoleerd met voorzetwanden, de plafonds worden voorzien van ecologisch akoestisch spuitwerk en er wordt een hoogwaardig ventilatiesysteem aangelegd. Bestaande houten kozijnen die overbodig zijn, worden daarbij op een andere plek in het gebouw zoveel mogelijk hergebruikt.

Hergebruik van materialen

Ook in de nieuwe laagbouw is gezocht naar circulariteit en hergebruik van bestaande materialen. Hier is op de bestaande fundering en begane grondvloer gezocht naar een functionele en passende nieuwe plattegrond. Door de toepassing van enkele nieuwe kolommen en wat betonaanstortingen is het gelukt om de bestaande fundering en begane grondvloer in zijn geheel te handhaven.

Verbinding tussen binnen en buiten

Om het interieur van de laagbouw te verbinden met buiten is er in het ontwerp voor gekozen om de houten spanten van binnen naar buiten door te laten steken. Hiermee ontstaat een variabel overstek dat gelijktijdig dienstdoet als bouwkundige zonwering. Het overstek vormt een geleidelijke overgang tussen binnen en buiten. Ook kunnen de kleine kinderen hier beschut onder spelen bij slechter weer. De zichtbare houten spanten onder het dakoverstek refereren op een subtiele en speelse wijze naar de detaillering van de monumentale dakrand van de hoogbouw.

Status: in ontwerp, 2020-2022
Locatie: Rotterdam, NL
Opdrachtgever: Samenwerkende Vrijescholen Zuid-Holland
Vloeroppervlak: 1.635 m²
Fotografie:  Stijn Poelstra
 

to top
Deze website maakt gebruik van cookies. Met het gebruik van de website, gaat u er mee akkoord dat wij cookies opslaan. Lees meer.
Begrepen