duinschool
Zuid-Holland, NL
9graden architectuur heeft een ontwerp gemaakt voor vervangende nieuwbouw van een school in een voormalig duingebied in Zuid-Holland. Daar waar de huidige school staat, waren vroeger duinen met direct uitzicht op de duinvallei ernaast. De overgang van de vroegere duinen naar de duinvallei is in de wijk nog goed herkenbaar als een steile helling begroeid met duinbos. Wij willen met het ontwerp de bestaande structuren versterken en een nieuwe verbinding realiseren tussen het schoolgebouw en de duinen.
beweging op het duinplein
Langs de vroegere duinrand loopt een voetpad door een prachtig park tot aan het aansluitende duingebied. De vormgeving van de nieuwe school in combinatie met het terrein schept een kans om niet alleen een mooi nieuw plein te realiseren, maar ook om een sterke landschappelijke verbinding te creëren met de duinen. We willen het plein vormgeven als een dynamisch en natuurlijk duinplein waar kinderen heerlijk in bewegen. Kinderen spelen midden in het duinzand, waar volop helm en zandhaver groeit. Spelen in duinzand is passend bij de locatie, ontzettend leerzaam voor de kinderen én het heeft zich bij referentieprojecten al goed bewezen. We planten waar gewenst nieuwe bomen op het duinplein, zoals de zeeden en iep, die passend zijn bij het aanwezige duinbos.
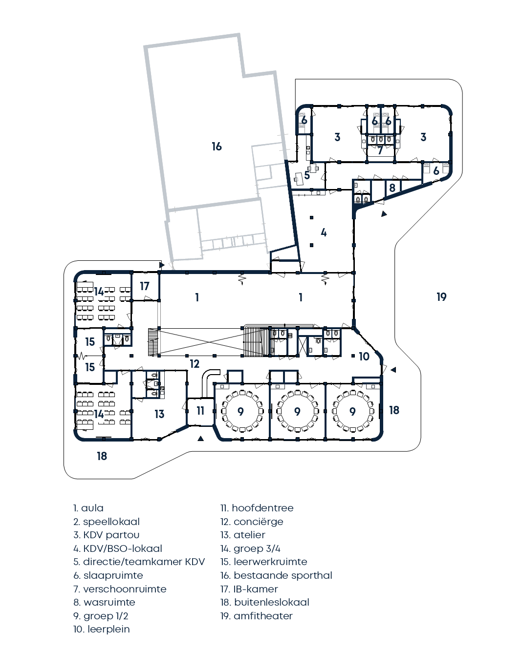
inrichting schoolplein
Het regenwater dat op het schooldak en -plein valt, wordt geïnfiltreerd naar het duingrondwater. Om tijdens een piekbui voldoende opvangcapaciteit te hebben, wordt met ondergrondse kratjes voldoende opvang gerealiseerd. Deze ondergrondse voorzieningen worden bijv. als boomwadie of boombunker gebouwd, zodat ze tevens een vochtreserve bieden voor de aanwezige bomen. De verharding van het schoolplein wordt vormgegeven met grote zandkleurige betonvelden met geborstelde toplaag. De lijnen tussen de velden worden afgewerkt met hout. De hoofdpaden naar de school en naar het duinpark zijn houten vlonders of indien gewenst klinkerpaden. De nieuwe parkeerplaatsen worden uitgevoerd in grasstenen, om verharding te reduceren en wateropname te maximaliseren.

menselijke schaal
De nieuwbouw krijgt in tegenstelling tot de bestaande school twee bouwlagen. Ondanks de extra verdieping doet het nieuwe schoolgebouw prettig en kleinschalig aan. Ter plekke van kinderdagverblijf heeft het gebouw een lager dak. Het dynamische dak groeit zo met de leeftijd van de kinderen mee. Dit geeft de school een menselijke schaal. De bestaande gymzaal is uit het zicht gehouden en wordt vanaf de hoofdentree verborgen door de nieuwbouw. De installaties op het dak worden gehuld door middel van een bijpassende ombouw. Deze ombouw geeft het gebouw een hoogteaccent dat aansluit bij de dynamische dakvorm. Door deze ingrepen krijgt het schoolgebouw echt een frisse moderne uitstraling die recht doet aan het onderwijs voor de 21e eeuw.
duinlandschap als identiteit
De locatie van de school is van wezenlijk belang voor de identiteit. Een school midden in de duinen, dicht bij zee en met een sterke verbinding met de omringende natuur. Deze verbinding komt tot uitdrukking in het ontwerp en de materialisatie van het nieuwe schoolgebouw. Het dak vloeit als een golvend duinlandschap dynamisch om het gebouw heen. Waar het schoolgebouw van binnen heel (multi-)functioneel en orthogonaal is opgezet, is het gebouw van buiten juist een dynamische en glooiende vertaling van het duinlandschap. Het grote dakoverstek en de transparante plint zorgen voor een sterke verbinding tussen binnen en buiten. Het dakoverstek dijt zich op bepaalde plekken ver uit en geeft daar veel ruimte om onder te spelen en leven. Deze uitdijing van het dak zorgt voor een moderne en dynamische gebouwmassa passend in het duinlandschap. Onder de veranda kunnen kinderen beschut buitenles krijgen. Het natuurlijke schoolplein zorgt ervoor dat kinderen midden in de natuur opgroeien en zich in de duinen wanen.

Status: architectenselectie, 2023
Locatie: Zuid-Holland, NL
Vloeroppervlak: ca. 1.900 m²
Landschapsarchitect: Hyco Verhaagen, Hüde

